以體驗為先,讓示範引出對話、對話轉成成交。
Experience first — demonstration generates conversation, conversation generates conversion.
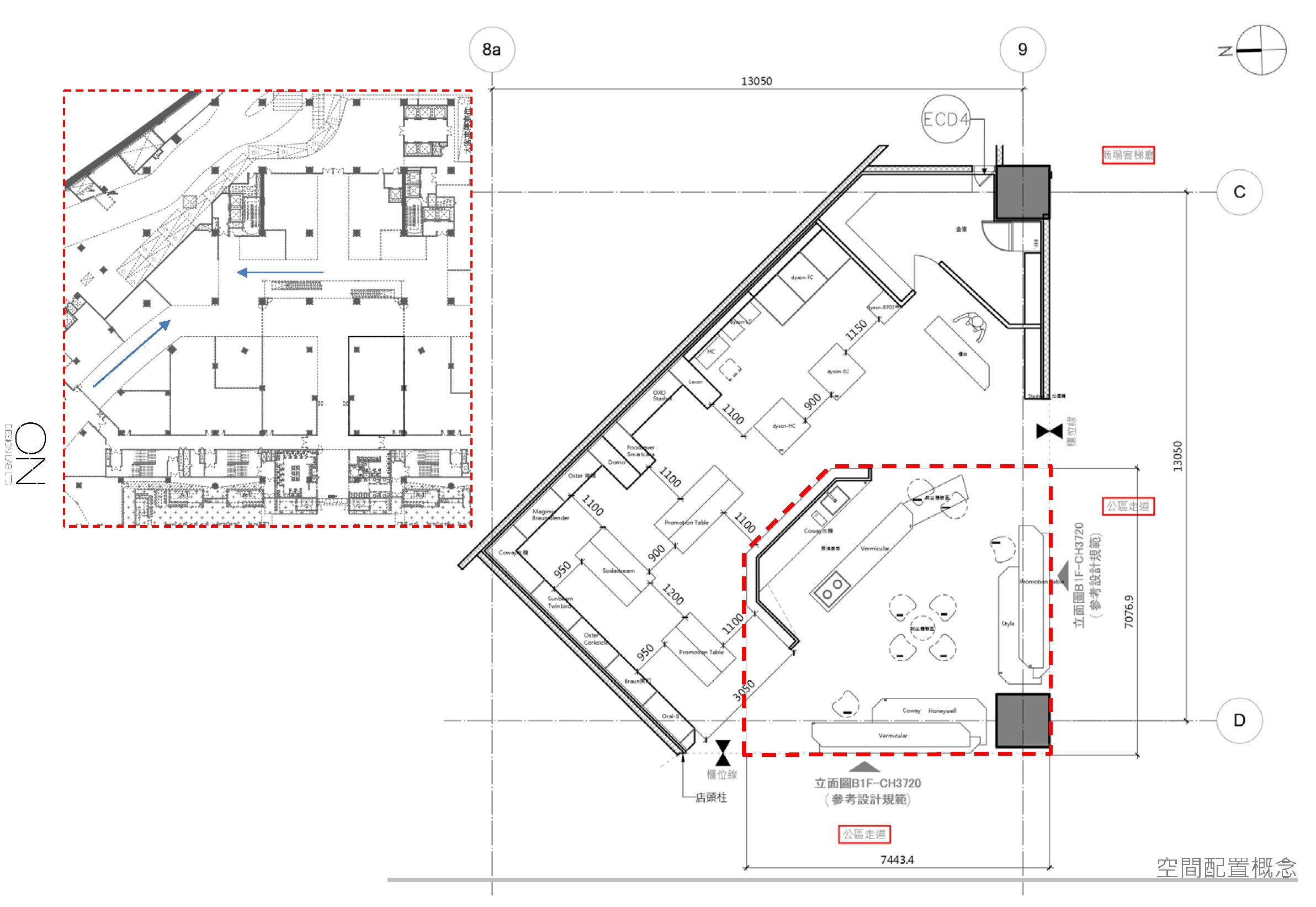
Floor Plan



01
在家電量販的場域裡,我們把主要的展演區當作一座「亭」來思考——讓人願意停下、靠近、實際操作,對話才會發生。空間分為三個層次:前場為展演區,中段為展售區,後場為庫存動線。
In a consumer electronics retail environment, we designed the main display as a pavilion — a place where people stop, approach, and actually try. Conversation follows. The space divides into three layers: front for demonstration, middle for browsing and sale, back for inventory flow.


02
磚紅色系斜向地坪是整個空間最安靜的設計決定,也是最有力的。斜向鋪排製造了方向性,不需要任何標誌,人流自然被帶向體驗島。顏色是磚紅,不是品牌色,這個選擇讓地坪成為空間的語言。
The diagonally laid brick-red flooring is the quietest design decision, and the most powerful. The diagonal creates directionality — no signage needed; foot traffic naturally flows to the experience island. Brick-red, not any brand color — the floor speaks the space's own language.

03
展演工作面一律使用鈦鋼石——乾淨、好清理、低反射,讓操作被看得更清楚。展售區回到黑與白作為中性背景,統一不同品牌的視覺。選材的邏輯只有一個:讓商品站出來,空間退後。
All demonstration surfaces use titanium sintered stone — clean, easy to maintain, low reflectivity, making operations more visible. The sales zone returns to black and white as neutral background. One material logic: products step forward, space steps back.

04
上方不做完整天花,改以大面積燈板取代,均勻補光、降低眩光,視線更乾淨。在一個以操作體驗為核心的空間裡,任何搶話的設計都是干擾。燈板退場,商品的細節才能被看見。
Large-format light panels replace a full ceiling — even fill, reduced glare, cleaner visual field. In a space built around hands-on experience, any design that demands attention is interference. The panels recede so product details can be seen.

05
一個好的展售空間,最後的檢驗標準是:客人願不願意多待五分鐘。不是因為還有東西沒看完,而是因為待在這裡的感覺是好的。磚紅地坪、均勻光板、操作島——這些選擇加在一起,讓一個家電賣場變成一個讓人想留下來的地方。
The final test of a good retail space is whether the customer stays five minutes longer — not because there is more to see, but because being here feels right. Brick-red floor, even light panels, experience island — together they turn an appliance store into a place people want to remain.
All Photos







